In today's fast-paced world, finding a perfect home that offers both luxury and a connection to nature is a dream for many. Godrej Woodland Plots is where this dream turns into reality. Nestled amidst lush greenery and expansive forests, this premium plotted development by Godrej Properties is designed for those who crave a balance between modern living and the tranquility of nature. Located in the heart of Sarjapur Road, Bangalore, Godrej Woodland offers an opportunity to build a customized home while being surrounded by beautiful landscapes and world-class amenities.
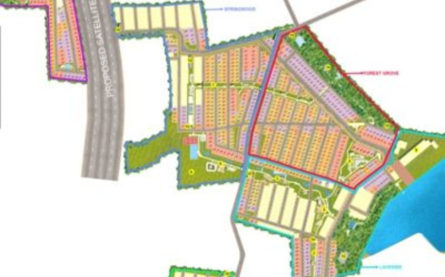
Spread across 100 acres of lush forests and scenic vistas, Godrej Woodland Plots is more than just a plotted development – it’s a community where nature and luxury coexist harmoniously. With over 1240 premium plots in a variety of sizes, this development caters to diverse preferences, whether you're looking for a cozy home or a sprawling estate.
Invest in Your Slice of Serenity
Location: Godrej Woodland is located at Sarjapur Road Extension, a prime area in Bangalore known for its connectivity and growth potential.
Location: The project is located in a prime area, providing easy access to essential amenities and major city landmarks.
Plot Sizes: The project offers spacious residential plots, with sizes starting from 4180 sq. ft., allowing for customization and expansive living spaces.
Amenities: Residents can enjoy over 50 amenities, including landscaped gardens, a clubhouse, sports facilities, and recreational areas.
Connectivity: The location provides excellent connectivity to major IT hubs, educational institutions, hospitals, and shopping centers in Bangalore.
Security: The project includes advanced security features to ensure a safe and secure living environment for all residents.
Sustainable Living: Emphasis on green living with well-planned infrastructure, open spaces, and eco-friendly design elements.
| Size | Price | Price Sheet |
|---|---|---|
| 1200 SQ.FT | On Request | |
| 1202 SQ.FT | On Request | |
| 1243 SQ.FT | On Request | |
| 1258 SQ.FT | On Request | |
| 1269 SQ.FT | On Request | |
| 1330 SQ.FT | On Request | |
| 1349 SQ.FT | On Request | |
| 1470 SQ.FT | On Request | |
| 1500 SQ.FT | On Request | |
| 1510 SQ.FT | On Request | |
| 1614 SQ.FT | On Request | |
| 1692 SQ.FT | On Request | |
| 1708 SQ.FT | On Request | |
| 1713 SQ.FT | On Request | |
| 1723 SQ.FT | On Request | |
| 1833 SQ.FT | On Request | |
| 1875 SQ.FT | On Request | |
| 1967 SQ.FT | On Request | |
| 1977 SQ.FT | On Request | |
| 2967 SQ.FT | On Request |

.jpg)
Godrej Woodland is a meticulously planned development spanning 100 acres, blending serene forest landscapes with modern conveniences. Offering plot sizes ranging from 900 sq. ft. to 1800 sq. ft., the project is perfect for building your dream home in a tranquil, eco-conscious setting. With a focus on sustainable living and open spaces, Godrej Woodland combines luxury amenities with nature-inspired design to cater to residents of all ages.
Godrej Woodland offers a variety of plot sizes to suit diverse lifestyle needs. Whether you’re a young professional seeking a compact home or a family looking for a spacious estate, the flexibility ensures a home tailored to your vision.
The range of plot sizes ensures Godrej Woodland is accessible to everyone, from individuals to large families seeking a peaceful retreat.
Godrej Woodland is equipped with world-class amenities designed to promote well-being, recreation, and community living. These features ensure a balanced and enriching lifestyle for all residents.
Godrej Woodland emphasizes eco-conscious living by incorporating sustainable features that enhance the quality of life while reducing environmental impact.
Godrej Properties, a trusted name in Indian real estate, is known for its innovative projects, quality construction, and focus on sustainability. With decades of experience, the company delivers developments that balance luxury, functionality, and environmental stewardship. Godrej Woodland exemplifies this ethos, offering a unique living experience that harmonizes nature with modern living.
Sarjapur Road is home to numerous prestigious developments, reinforcing its reputation as a prime residential and commercial hub:
Known as the Silicon Valley of India, Bangalore offers a dynamic blend of professional opportunities, top-tier education, and excellent healthcare. Sarjapur Road, in particular, is an emerging hotspot with proximity to IT corridors, ensuring a high demand for quality housing.
As Sarjapur Road continues to develop, Godrej Woodland’s location ensures strong appreciation potential. The area’s expanding infrastructure, growing IT presence, and proximity to lifestyle hubs make this project a secure investment for long-term growth.
One of the key highlights of Godrej Woodland is its strategic location on Sarjapur Road, Bangalore. This area is known for its excellent connectivity and proximity to major IT hubs, educational institutions, and healthcare facilities. Sarjapur Road has emerged as one of the most sought-after residential locations in Bangalore, offering a perfect blend of urban living and nature.
Godrej Woodland is located off Sarjapur Road in East Bangalore, offering excellent connectivity to major IT hubs, educational institutions, healthcare facilities, and entertainment zones in the city.
The project offers various plot sizes to suit different needs: Cottage (900 sq.ft.), Bungalow (1,200 sq.ft.), Mansion (1,500 sq.ft.), and Estate (1,800 sq.ft.).
Amenities include a 45,000 sq.ft. clubhouse, themed gardens, forest trails, an outdoor gym, an open amphitheater, a garden café, and more than 50 lifestyle facilities for residents.
Yes, Godrej Woodland is designed with sustainability in mind, incorporating rainwater harvesting, waste management systems, and extensive green cover with over 16,500 indigenous trees.
Plot prices in Godrej Woodland start from approximately ₹30 lakh onwards, depending on the plot size and location within the project.
The expected possession date for Godrej Woodland is projected for 2025.
DRA Palm Lakeside
Starts @ ₹1.75 Cr* Onwards*
Guru Punvaani Eka
Starts @ ₹31.7 Lacs* Onwards*
Shriram Santorini
Starts @ ₹1.89 Cr* Onwards*
Concorde Equity
Starts @ ₹21.6 Lacs* Onwards*
Shriram Chirping Ridge
Starts @ ₹22 Lacs* Onwards*
NBR Golden Valley
Starts @ 18 Lacs Onwards*
Bagalur, Hosur
About Project
NBR Golden Valley is a premium plotted development located in Bagalur, near Hosur Road. Spread across 32 acres, this project offers 325 villa plots ranging from 1500 to 5000 sq. ft., providing a serene lifestyle with modern amenities. Designed with beautiful landscaping and top-notch infrastructure, it is ideal for those seeking a peaceful yet well-connected location. The project is approved by HNTDA, ensuring a secure investment with easy access to Bangalore's major hubs, educational institutions, and hospitals.
Cost Range
| 1200 Sq.ft | 19 Lacs* |
|
|
| 1500 Sq.ft | 24 Lacs* |
|
|
| 1800 Sq.ft | 29 Lacs* |
|
|
| 2000 Sq.ft | 32 Lacs* |
|
|
| 2400 Sq.ft | 38 Lacs* |
|
|
| 3000 Sq.ft | 45 Lacs* |
|
Brochure & Masterplan
The content is for information purposes only and does not constitute an offer to avail of any service. Prices mentioned are subject to change without notice and properties mentioned are subject to availability. Images for representation purposes only. This is the official website of authorized marketing partner. We may share data with RERA registered brokers/companies for further processing. We may also send updates to the mobile number/email id registered with us. All Rights Reserved.